Skip to content
Work Pods - Eventus Business Centre - Business Lincolnshire
Work Pods Eventus Business Centre - Business Lincolnshire
Lockers For Work Pods - Eventus Business Centre - Business Lincolnshire
Work Pods Eventus Business Centre - Business Lincolnshire
Eventus External Sign - Eventus Business Centre - Business Lincolnshire
Interior Sign above plants in purple plant box - Eventus Business Centre - Business Lincolnshire
Eventus Mug on desk - Eventus Business Centre - Business Lincolnshire

Work Pods at Eventus

Eventus Business Centre, Sunderland Road, Market Deeping, Peterborough, PE6 8FD

01778 382700

Description

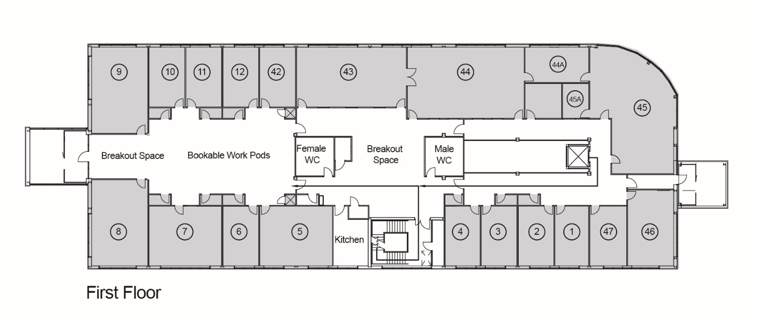
Bookable Workspace

Eventus Work Pods provide good quality, modern hot desking space in which individuals and business users can concentrate and collaborate.  Enjoy the support of Eventus Business Centre and the benefits of sharing workspace with like-minded business users.

Pay only for the time that you need, with pods available to book by the day or half day.

Each pod has deskspace, free high speed WiFi, facility for charging a laptop, phone or other devices and an adjustable ergonomically designed chair for comfort and support.

Our fully enclosed Cubes provide ventilated, sound proofed, self-contained space within our flexible workspace area.

Our semi-open Quartz Pods are partially enclosed to provide privacy whilst allowing for a greater degree of collaboration with other users.

Lockers are available for storage of belongings whilst on site, or overnight when making multiple bookings.

Private phone booths provide space for confidential calls, free of charge.

Workspace Benefits

Eventus is a modern, purpose built fully accessible Business Centre designed to help small and medium enterprises to grow and flourish.

Serving South Lincolnshire, it provides agile workspace, meeting rooms, over 40 self-contained offices let on flexible terms, break out space, landscaped grounds and a café.

Property Details

Tenure

Depending on your preference, we offer two fully enclosed Cubes and six semi-open Quartz Pods. We can facilitate closer working in pairs when booking a Quartz pod – please enquire using the online booking form.

 

Work Pod type Half Day (am/pm) Full Day
Cube £10.00 +VAT (£12 inc) £20.00 +VAT (£24 inc)
Quartz  £8.33 +VAT (£10 inc) £16.66 +VAT (£20 inc)

(Pod prices are the same for tenants and external users).

To visit the online booking system, please click here.

Car Parking

A large car park provides free parking for over 110 cars, with electric vehicle charging points and secure cycle storage.

Services

Eventus could be the ideal place to host your meetings, with rooms available that are suitable for a range of layouts, with potential to accommodate up to 60 people.

Eventus meeting rooms provide good quality space, with all public facilities being situated on the ground floor for ease of access.  Modern technology including smart TVs and WiFi in every meeting room as well as pre-bookable Meeting Owl camera/microphone will enable you to make the most of your time and for colleagues working remotely to join your meeting virtually.

Our smallest, four person meeting room can be booked for as little as an hour at a time, and our larger rooms are available by the day or half day. 

Are you working from a home office but would prefer a business address? Eventus also offers a Virtual Tenancy option.  Your post is kept secure for you to collect when convenient.  Virtual tenants have access to reduced rates on our meeting rooms and use of our Administration and Support services.

Alternatively, if you are interested in exclusive use of an Eventus office please get in touch for details of availability.

For a no obligation discussion, or a tour of the building to see the facilities on offer, please contact us.

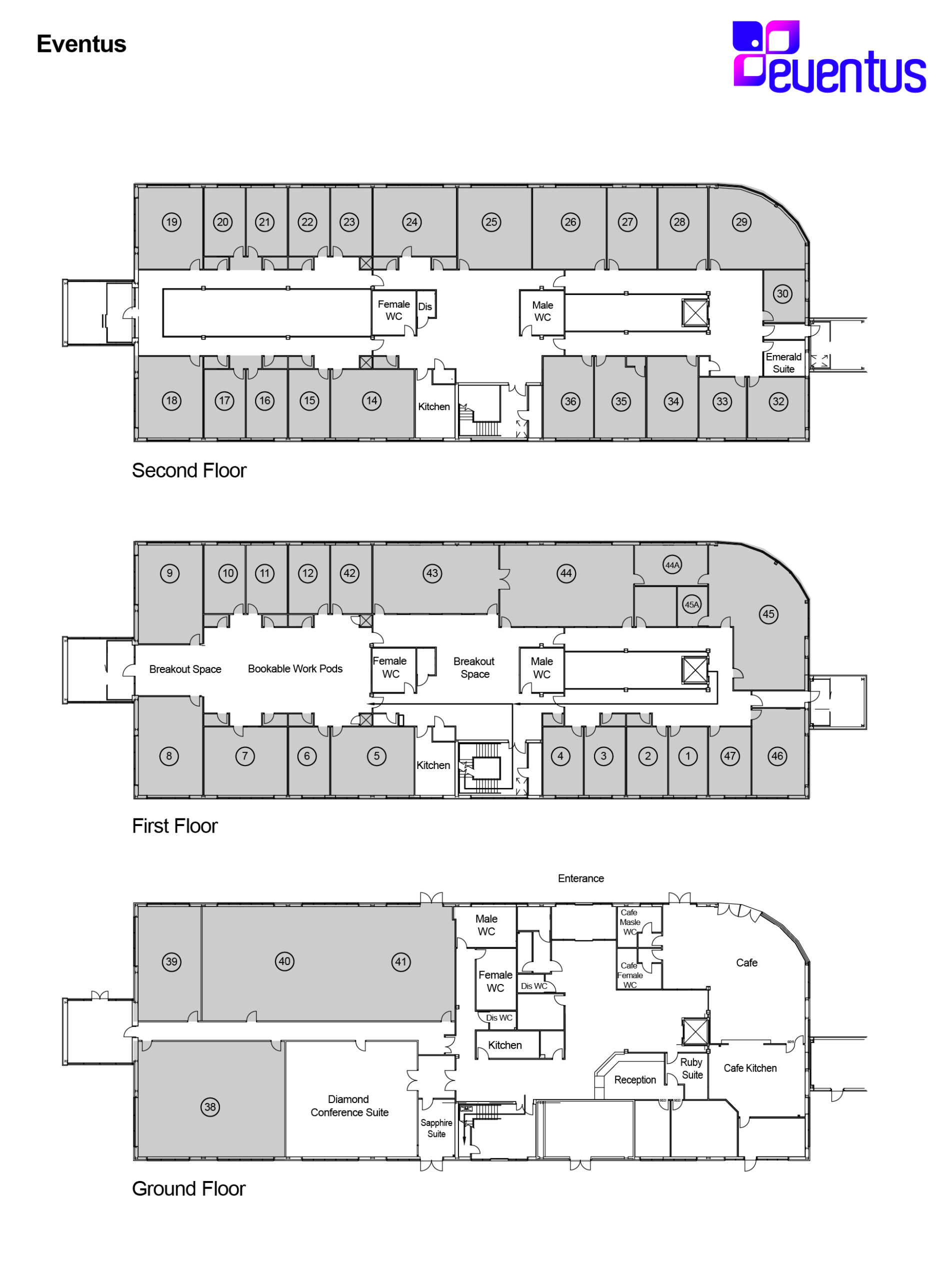
Floor Plans

Eventus Floor Plans Pods - Eventus Business Centre - Business Lincolnshire
Eventus Floor Plans - Eventus Business Centre - Business Lincolnshire

Location and Local Area

Situated just off the A16 on the outskirts of Market Deeping, Eventus is readily accessible and within easy commuting distance of Bourne, Stamford, Peterborough and Spalding.

Google Maps requires cookies to load. Please accept cookies to view.

Find Out More

For an no obligation discussion, or a tour of the building to see the facilities on offer, please contact us. Call 01778 382700 or:

Properties you may also be interested in...

Eventus Meeting Rooms

Eventus Meeting Rooms

Eventus could be the ideal place to host your meeting, with rooms available that are suitable for a range of layouts, with potential to accommodate...

Bookable Workspace